Casa semi indipendente su due livelli


70.000 €
155 m2
2 Camere
2 Bagni
1 Box / 2 Posti auto
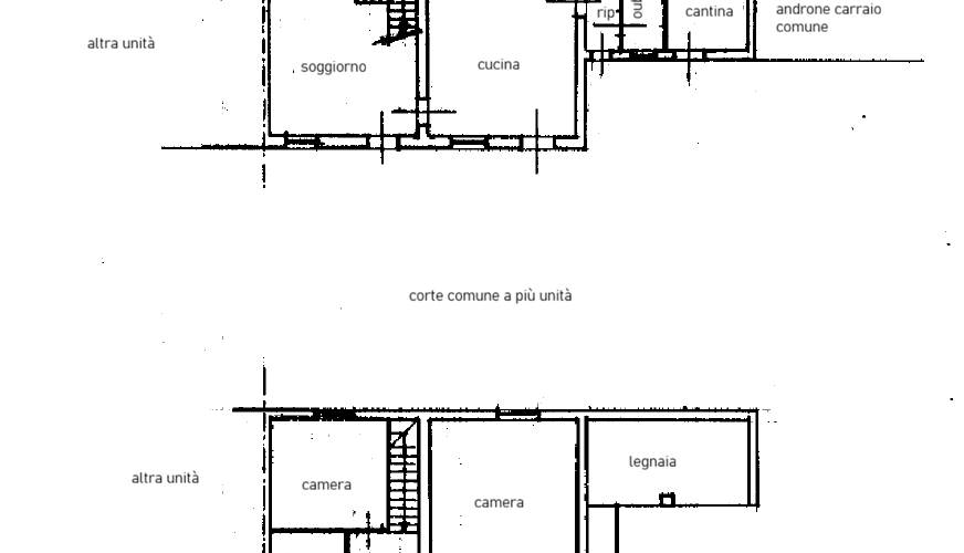
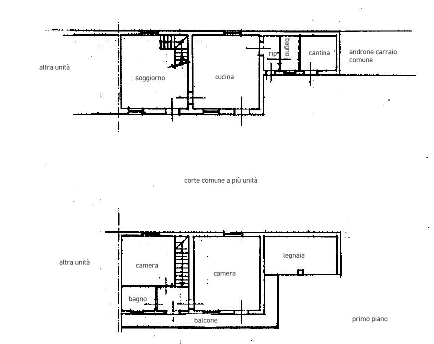
Proponiamo in vendita una casa disposta su due livelli, ideale per chi cerca comfort e tranquillità senza rinunciare agli spazi esterni. L’immobile si compone di una cucina abitabile, un luminoso soggiorno, due camere da letto e due bagni, offrendo ambienti ben distribuiti..
La casa è dotata di serramenti in alluminio con doppio vetro, caldaia a condensazione e climatizzatore.
Inserita all’interno di una corte comune, la proprietà garantisce comunque indipendenza grazie alla presenza di una porzione di giardino di proprietà ed uso esclusivo.

Completano la soluzione un box auto, una cantina e un ampia tettoia di 40mq
Caratteristiche principali
Codice
V000257
Città
Robbio
Categoria
Casa singola
Locali
3
Camere
2
Bagni
2
Mq
155
Box
1
Mq Box
14
Posti auto
2
Mq Giardino
500
Balconi
1
Piano
1
Classe energetica
In fase di valutazione
Stato Immobile
Buono
Grado
Medio
Panorama
Vista Aperta
Orientamento
Nord Ovest Sud Est
Lati Liberi
2
Giardino
Privato
Arredi
Possibilità
Tipo Soggiorno
Soggiorno
Tipo Cucina
Abitabile
Riscaldamento
Autonomo
Tipo Riscaldam.
Caldaia a Condensazione
Tipo Impianto
Radiatori
Fonte Energetica
Metano
Acqua Calda
Autonoma
Raffrescamento
Split
Infissi
Alluminio Doppio Vetro
Serramenti
Buono
Persiana
Persiana Legno
Accessori
Aria Condizionata, Cancello Elettrico, Doppi Vetri, Fibra Ottica, Impianto Satellitare, Passaggio Automobilistico, Passaggio Pedonale, Rete Dati, Ripostiglio
Cookie preference