VILLA


264.000 €
121 m2
3 Camere
2 Bagni
1 Box / 1 Posti auto
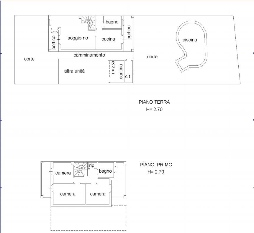
In contesto residenziale riservato e tranquillo, composto da tutte villette e basse costruzioni, proponiamo esclusiva villa di recente realizzazione, contraddistinta da finiture di ottimo livello, ben curata nei dettagli con ambienti progettati per offrire il massimo comfort abitativo.
La proprietà, di circa 150 mq, si sviluppa su spazi armoniosamente distribuiti:
Tre camere da letto ampie e luminose
Due bagni dal design moderno ed elegante
Cucina abitabile di generose dimensioni
Un bel salone, cuore della casa, ideale per accogliere ospiti in un'atmosfera di classe e convivialità.
All'esterno, un portico dotato di zanzariere automatizzate, crea un ambiente protetto e vivibile in ogni stagione, perfetto per pranzi e cene all'aperto.
Fiore all'occhiello della proprietà è la piscina privata, incastonata in uno spazio dedicato al relax e alla convivialità, ideale per vivere appieno la stagione estiva e organizzare momenti esclusivi con amici e famiglia.
Interamente climatizzata e con impianto di antifurto.
Una comoda autorimessa con attigua cantina e dispensa
Una soluzione abitativa pensata per chi desidera indipendenza, eleganza e qualità costruttiva, senza rinunciare al piacere di vivere gli spazi esterni.
Caratteristiche principali
Codice
0021
Città
Borgolavezzaro
Categoria
Villa
Locali
4
Camere
3
Bagni
2
Mq
121
Box
1
Mq Box
24
Posti auto
1
Balconi
1
Classe energetica
In fase di valutazione
Stato Immobile
Ottimo
Grado
Signorile
Posizione
Campagna
Panorama
Vista Aperta
Orientamento
Nord Ovest Sud Est
Lati Liberi
2
Giardino
Privato
Arredi
Possibilità
Tipo Soggiorno
Soggiorno
Tipo Cucina
Abitabile
Riscaldamento
Autonomo
Tipo Riscaldam.
Caldaia a Condensazione
Tipo Impianto
Radiatori
Fonte Energetica
Metano
Acqua Calda
Autonoma
Raffrescamento
Split
Infissi
PVC Doppio Vetro
Serramenti
Ottimo
Persiana
Persiana Legno
Pavim. Giorno
Ceramica
Pavim. Notte
Ceramica
Accessori
Antifurto, Aria Condizionata, Cancello Elettrico, Doppi Vetri, Fibra Ottica, Impianto Satellitare, Passaggio Automobilistico, Passaggio Pedonale, Piscina, Porta Blindata, Rete Dati, Zanzariere
Cookie preference